|
浙江省公务员考试将于3月3日拉开帷幕,考生已经到了最后的冲刺时刻。鉴于行测复习的繁琐与费时,中公教育专家在认真研究总结浙江行测历年考试真题基础上,特推出2012浙江公务员考试行测高频高点大盘点系列,帮助考生顺利备考。本篇为考生盘点数量关系部分。
浙江省公务员考试数量关系部分考查数字推理与数学运算。
(一)数字推理
在浙江公务员考试中数字推理有两种考查形式:数列形式数字推理、图形形式数字推理。
1。数列形式数字推理
浙江省考中数列形式数字推理的规律类型涉及各种基本数列及其变式,整体难度较大,需要有知识和经验的积累。
例题1:浙江行测真题
中公解析:分子=前项分子+前项分母,分母=前项分母+分子;空缺项分子为21+
34=(55),分母为34+55=(89)。本题选C。
例题2:浙江行测真题
16, 23, 9, 30, 2, ( )
A.37 B.41
C.45 D.49
中公解析:方法一,和数列变式。

方法二,采用作差法。

分别为7的1、-2、3、-4、5倍。本题选A。
2。图形形式数字推理
图形形式数字推理是数字推理的另一大类型,分布在图形中的数字由于位置不同而具有相应的运算关系。
例题3:浙江行测真题

A.9 B.10
C.11 D.12

(二)数学运算
数学运算有两种考查形式:算术计算题、文字应用题。
在浙江省公务员考试中,数学运算以文字应用题为主,需要利用必要的数学基础知识列式计算。题型以传统题为主,其中计算问题、行程问题、几何问题等出现频率较高。
例题1:浙江行测真题
2011×201+201100-201.1×2910的值为:
A.20110 B.21010
C.21100 D.21110
中公解析:原式=2011×201+2011×100-2011×291=2011×(201+100-291)=2011×10=20110。本题选A。
例题2:浙江行测真题
a大学的小李和b大学的小孙分别从自己学校同时出发,不断往返于a、b两校之间。现已知小李的速度为85米/分钟,小孙的速度为105米/分钟,且经过12分钟后两人第二次相遇。问a、b两校相距多少米?
A.1140米 B.980米
C.840米 D.760米
中公解析:设a大学和b大学之间的距离为s,因为小孙和小李相遇两次,则两人走过的路程总共为3s,根据题意可得:12×(85+105)=3s,解得s=760米。本题选D。
例题3:浙江行测真题
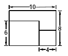
已知一个长方体的长、宽、高分别为10分米、8分米和6分米,先从它上面切下一个最大的正方体,然后再从剩下的部分上切下一个最大的正方体。问切除这两个正方体后,最后剩下部分的体积是多少?

A.212立方分米 B.200立方分米
C.194立方分米 D.186立方分米
中公解析:这个立方体的最短边长6分米,所以能切掉的最大正方体体积为6×6×6=216立方分米。考虑8×10的平面的切法,如图所示,剩下的部分最大能切出4×4的正方形,即能切下4×4×4=64立方分米的正方体。
所以剩下部分的体积为10×8×6-6×6×6-4×4×4=200立方分米。本题选B。
分享到:
|